温馨舒适的空间逐渐增多
馆内重新装修
1965年开业以来,随着时代变迁金太郎温泉也逐渐地改变着优雅风貌。
结合日本和西洋的设计风格营造了独特面貌的客房以及新概念的主题餐厅等,
逐渐地创建了温馨惬意的舒适空间。
持续半个世纪之久的著名温泉保留其原有特色,重新装修后提供更舒适的空间,
让您可以享受悠闲而温馨的在住时光。
天然温泉
享受100%源泉放流式温泉的奢侈入浴时光。
金太郎温泉是由大地涌出来的矿物质丰富的天然温泉。
含有盐分和硫磺等混合成分,是日本国内罕见的温泉泉质。
客房
步入客房,映入眼帘的是让人忘却喧嚣的宽敞空间。
2019年4月重新装修,让您在此度过安静而舒适的在住时光。
- 全室配备无线Wi-Fi
不吸烟
客房类型
- 别墅 峰之界
- 标准客房
-
更高级别的豪华楼层

现代日式床铺客房

配置露天浴池的
现代日西混合客房
配置淋浴室的
现代日西混合客房
配置露天浴池的
套房
特别客房
-
日本旅馆独特的优雅空间
![日式床铺客房]()
日式床铺客房
![日式客房]()
日式客房
![日西混合客房]()
日西混合客房
![单人房]()
单人房
![双床房]()
双床房
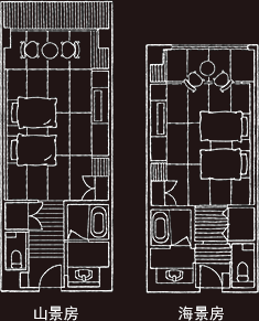
现代日式床铺客房
客房布置

- 房型图
-
![房型图]()
| 地点 | 光风阁3楼 |
|---|---|
| 面积 | 日式客房16张塌塌米(有浴盆) |
| 容纳人数 | 2~6人 床铺可供2人使用,3人住宿时为您铺设日式被褥。 |
| 其他 | 全室禁烟 ※馆内有吸烟区 |
客房设备・生活用品
| 馆内设备 |
席梦思品牌床铺 茶具套组(热水壶、茶叶、茶点、冷水) 客房钥匙 2把 电视 坐便(西式:多功能坐便器)/冷气/暖气/冰箱/保险箱 |
|---|---|
| 日常用品 | 刷/洗发水/护发素/沐浴露/毛巾/浴巾/吹风机/剃须刀/浴衣 |
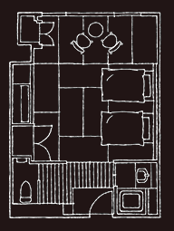
配置露天浴池的现代日西混合客房
客房布置

- 房型图
-
![房型图]()
| 地点 | 光风阁4楼 |
|---|---|
| 面积 | 日式客房8张塌塌米客厅+双床客房(附带露天浴池)约43m² |
| 容纳人数 | 4人 |
| 其他 | 全室禁烟 ※馆内有吸烟区 ※客房配置的露天浴池不是温泉水。 |
客房设备・生活用品
| 馆内设备 |
席梦思品牌床铺 茶具套组(热水壶、茶叶、茶点、冷水) 客房钥匙 2把 电视 坐便(西式:多功能坐便器)/冷气/暖气/冰箱/保险箱 |
|---|---|
| 日常用品 | 牙刷/洗发水/护发素/沐浴露/毛巾/浴巾/吹风机/剃须刀/浴衣 |
配置淋浴室的现代日西混合客房
客房布置

- 房型图
-
![房型图]()
| 地点 | 光风阁4楼 |
|---|---|
| 面积 | 日式客房8张塌塌米+双床客房(配置淋浴室)约42m² |
| 容纳人数 | 4人 |
| 其他 | 全室禁烟 ※馆内有吸烟区 |
客房设备・生活用品
| 馆内设备 |
席梦思品牌床铺 茶具套组(热水壶、茶叶、茶点、冷水) 客房钥匙 2把 电视 坐便(西式:多功能坐便器)/冷气/暖气/冰箱/保险箱 |
|---|---|
| 日常用品 | 牙刷/洗发水/护发素/沐浴露/毛巾/浴巾/吹风机/剃须刀/浴衣 |
配置露天浴池的套房
客房布置

- 房型图
-
![房型图]()
| 地点 | 光风阁4楼 |
|---|---|
| 面积 | 日式客房12张塌塌米+双床客房+客厅(附带露天浴池)约87m² |
| 容纳人数 | 6人 |
| 其他 | 全室禁烟 ※馆内有吸烟区 ※客房配置的露天浴池不是温泉水。 |
客房设备・生活用品
| 馆内设备 |
席梦思品牌床铺 茶具套组(热水壶、茶叶、茶点、冷水) 客房钥匙 2把 电视/マッサージチェア 坐便(西式:多功能坐便器)/冷气/暖气/冰箱/保险箱 |
|---|---|
| 日常用品 | 牙刷/洗发水/护发素/沐浴露/毛巾/浴巾/吹风机/剃须刀/浴衣 |
特别客房
客房布置

- 房型图
-
![房型图]()
| 地点 | 光风阁4楼 |
|---|---|
| 面积 | 日式客房15张塌塌米+双床客房+客厅(有浴盆)约84m² |
| 容纳人数 | 6人 |
| 其他 | 全室禁烟 ※馆内有吸烟区 |
客房设备・生活用品
| 馆内设备 |
席梦思品牌床铺 茶具套组(热水壶、茶叶、茶点、冷水) 客房钥匙 2把 电视 坐便(西式:多功能坐便器)/冷气/暖气/冰箱/保险箱 |
|---|---|
| 日常用品 | 牙刷/洗发水/护发素/沐浴露/毛巾/浴巾/吹风机/剃须刀/浴衣 |
日式床铺客房
客房布置

- 房型图
-
![房型图]()
| 地点 | 光风阁别馆5楼・6楼 |
|---|---|
| 面积 | 日式客房15张塌塌米(有浴盆) |
| 容纳人数 | 2~6人 床铺可供2人使用,3人住宿时为您铺设日式被褥。 |
| 其他 | 全室禁烟 ※馆内有吸烟区 |
客房设备・生活用品
| 馆内设备 |
席梦思品牌床铺 茶具套组(热水壶、茶叶、茶点、冷水) 客房钥匙 2把 电视 坐便(西式:多功能坐便器)/冷气/暖气/冰箱/保险箱 |
|---|---|
| 日常用品 | 牙刷/洗发水/护发素/沐浴露/毛巾/浴巾/吹风机/剃须刀/浴衣 |
日式客房
客房布置

- 房型图
-
![房型图]()
| 地点 | 光风阁别馆3楼・4楼 |
|---|---|
| 面积 | 日式客房 12张塌塌米(无浴盆) |
| 容纳人数 | 6人 |
| 其他 | 全室禁烟 ※馆内有吸烟区 |
客房设备・生活用品
| 馆内设备 | 茶具套组(热水壶、茶叶、茶点、冷水) 电视 坐便(西式:多功能坐便器)/冷气/暖气/冰箱/保险箱 |
|---|---|
| 日常用品 | 牙刷/毛巾/浴巾/吹风机/浴衣 |
日西混合客房
客房布置

- 房型图
-
![房型图]()
| 地点 | 光风阁别馆3楼・4楼・6楼 |
|---|---|
| 面积 | 日式客房10张塌塌米+双床客房(有浴盆) |
| 容纳人数 | 5人 |
| 其他 | 全室禁烟 ※馆内有吸烟区 |
客房设备・生活用品
| 馆内设备 |
席梦思品牌床铺 茶具套组(热水壶、茶叶、茶点、冷水) 电视 坐便(西式:多功能坐便器)/冷气/暖气/冰箱/保险箱 |
|---|---|
| 日常用品 | 牙刷/洗发水/护发素/沐浴露/毛巾/浴巾/吹风机/剃须刀/浴衣 |
单人房
客房布置

- 房型图
-
![房型图]()
| 地点 | 光风阁别馆5楼・6楼 |
|---|---|
| 面积 | 21.6m²(有浴盆) |
| 容纳人数 | 1人 |
| 其他 | 全室禁烟 ※馆内有吸烟区 |
客房设备・生活用品
| 馆内设备 |
席梦思品牌床铺 茶具套组(热水壶、茶叶、茶点、冷水) 电视 坐便(西式:多功能坐便器)/冷气/暖气/冰箱/保险箱 |
|---|---|
| 日常用品 | 牙刷/洗发水/护发素/沐浴露/毛巾/浴巾/吹风机/剃须刀/浴衣 |
双床房
客房布置

- 房型图
-
![房型图]()
| 地点 | 光风阁别馆5楼・6楼 |
|---|---|
| 面积 | 21.6m²(有浴盆) |
| 容纳人数 | 1~2人 |
| 其他 | 全室禁烟 ※馆内有吸烟区 |
客房设备・生活用品
| 馆内设备 |
席梦思品牌床铺 茶具套组(热水壶、茶叶、茶点、冷水) 电视 坐便(西式:多功能坐便器)/冷气/暖气/冰箱/保险箱 |
|---|---|
| 日常用品 | 牙刷/洗发水/护发素/沐浴露/毛巾/浴巾/吹风机/剃须刀/浴衣 |
馆内介绍
| 入住/退房 | 入住 15:00/ 退房 10:00 |
|---|---|
| 客房数量 | 90间 |
| 信用卡 | VISA/JCB/American Express/Diner's Club/UC/DC/NICOS/Bank Card/UFJ Card/Master Card/CF/银联卡 |
关于吸烟区
本酒店全馆禁烟。因此,吸烟的旅客请您使用吸烟区。

料理
金太郎温泉主要提供使用精选特色食材而精心烹调的宴会套餐。

自助早餐
提供以日料为主的超过50多种美味菜品。
馆内设施
交通路线
从北陆新干线黑部宇奈月温泉站前来约10分钟

| 施设名称 | 金太郎温泉 |
|---|---|
| 地址 | 邮编号码937-0013 富山县鱼津市天神野新6000 |
| 电话号码 | +8176-524-1220 |
- 搭乘电车
前来的旅客 - 驾车
前来的旅客 - 搭乘飞机
前来的旅客
-
搭乘电车前来的旅客
-
东京
(约2小时20分钟)北陆新干线
2小时14分钟黑部宇奈月温泉站
驾车
约10分钟金太郎温泉
-
大阪
(约4小时)特急雷鸟号列车
2小时31分钟金泽站
北陆新干线
约19分钟黑部宇奈月温泉站
驾车
约10分钟金太郎温泉
-
名古屋
(约4小时)新干线
30分钟米原站
特急白鹭号列车
2小时31分钟金泽站
北陆新干线
约19分钟黑部宇奈月温泉站
驾车
约10分钟金太郎温泉
-
-
驾车前来的旅客
-
东京
(约4小时30分钟)关越高速公路
约3小时30分钟藤冈交流道
北陆高速公路
约3小时金太郎温泉
-
大阪
(约4小时)名神自動驾车道
约1小时30分钟米原高速口
北陆高速公路
约3小时金太郎温泉
-
名古屋
(约3小时30分钟)一宫高速口
东海北陆高速公路
约2小时30分钟小矢部砺波交流道
北陆高速公路
约3小时金太郎温泉
-
-
搭乘飞机前来的旅客
-
羽田
(约1小时45分钟)ANA
约65分钟富山
驾车
约40分钟金太郎温泉
-
大阪
(约4小时)ANA
约95分钟富山
驾车
约40分钟金太郎温泉
-
关于接送巴士
如果您需要利用接送班车发车时间外的服务,请您联系我们。
北陆新干线・黑部宇奈月温泉站
金太郎温泉
| 黑部宇奈月温泉站(出发) | 金太郎温泉(抵达) | |
| 接客 | 15:00 16:00 |
15:10 16:10 |
| 金太郎温泉(出发) | 黑部宇奈月温泉站(抵达) | |
| 送客 | 8:30 9:30 10:50 |
8:40 9:40 11:00 |
乘车站点在富山地方铁道新黑部站的站前广场。
请走出新干线黑部宇奈月温泉站南口,然后穿过正面的人行横道过去。
富山地方铁道新黑部站来访的旅客也可以使用。
爱之风富山铁道鱼津站
金太郎温泉
| 魚津駅(出发) | 金太郎温泉(抵达) | |
| 接客 | 15:30 | 15:40 |
| 金太郎温泉(出发) | 魚津駅(抵达) | |
| 送客 | 9:10 10:00 |
9:20 10:10 |
由富山地方铁道新鱼津站来访的旅客也可以利用接送班车。
从新鱼津站大厅前来经过地下通道,然后向爱之风富山铁道鱼津站方向前进。
北陆新干线・黑部宇奈月温泉站
→ 金太郎温泉
乘车站点在富山地方铁道新黑部站的站前广场。
请走出新干线黑部宇奈月温泉站南口,然后穿过正面的人行横道过去。
-
1
走出检票口继续前行
-
2
从南口出来,穿过人行横道后向左转。
-
3
富山地方铁道新黑部站
接送班车会停在站前圆环处。
爱之风富山铁道鱼津站
→ 金太郎温泉
从新鱼津站大厅前来经过地下通道,让后想爱之风富山铁道鱼津站方向前进。
-
1
走出检票口继续前行
-
2
接送班车会停在车站正面附近。
「富山地方铁道」新鱼津站
→ 金太郎温泉
-
1
走出检票口继续前行
-
2
走下台阶后向右转,向爱之风富山铁道鱼津站方向前进,然后一直穿过地下通道。
-
3
穿过地下通道后,便是爱之风富山铁道鱼津站的前方。
接送班车会停在车站正面附近。
停车场
| 停车台数 | 大型车辆15台・轿车150台 |
|---|---|
| 停车费 | 免费 |
| 地点 | 室外 不要预约 |












查看谷歌室内地图





























